В увеличенных шкафах для хранения противопожарного оборудования одна секция оснащается двумя корзинами для хранения пожарных рукавов, а вторая – двумя подставками для огнетушителей. В зависимости от особенностей помещения вы можете выбрать несколько типов моделей:
- навесная или встроенная;
Навесная прибивается к стене, а встроенная устанавливается в нишу, что делает ее менее заметной. Второй вариант часто встречается в офисах и торговых помещениях.
- открытая или закрытая;
В первом случае дверца делается со стеклянным окошком, через которое видно пожарное оборудование. Обычно используется в закрытых для свободного посещения местах. Во втором случае дверца полностью выполняется из металла.
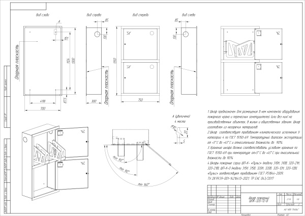
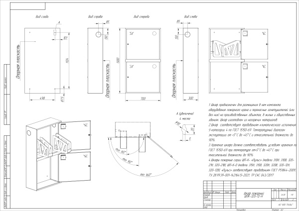
Все шкафы свариваются из стальных листов на месте установки, что гарантирует повышенную прочность. Температурный диапазон составляет от +5 до +45 градусов с уровнем влажности до 95 %. Модели премиум-класса «Пульс» отличаются повышенной прочностью.

















































































































































































