- Встроенный
- Навесной
- Закрытый
- Открытый
- Белый (RAL 9016)
- Красный (RAL 3002)
- Правый
- Левый
- Евроручка
- Почтовый замок
- Возможен самовывоз заказанной продукции с центрального склада (г. Щёлково) или с торговых точек. Стоимость самовывоза - 0 руб.
- Стоимость перемещения заказа на точку с центрального склада - 0р. Срок перемещения 3 р.д.
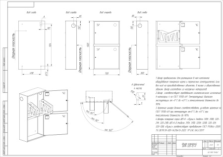
Шкаф пожарный ШПК-320-О-12 «Пульс» НОК с почтовыми замками (навесной, открытый, красный) для двух рукавов крана противопожарного водопровода и двух огнетушителей.
Секции шкафа имеют равные размеры и расположены друг над другом. Верхний отдел комплектуется двумя поворотными корзинами (рукавными кассетами) для двух напорных рукавов диаметром от 50 до 66 мм. Нижнее отделение предназначено для хранения двух огнетушителей.
Снабжен дверцами со смотровым окном с почтовыми замками и карманами для хранения ключей. Окрашен прочным полимерным покрытием красного цвета.
• Произведен в соответствии с требованиями ГОСТ Р 51844-2009 (угол открывания дверей, нагрузка на кассету, нагрузка на корпус, быстрота вскрытия, опломбирование, вентиляция и пр.)
• Сертифицирован в соответствии с техническим регламентом Евразийского экономического союза «О требованиях к средствам обеспечения пожарной безопасности и пожаротушения» (ТР ЕАЭС 043/2017), вступившим в силу с 01.01.2020.
Преимущества пожарного шкафа ШПК-320-12 «Пульс» НОК:
1. Оперативная подготовка рукава к пожаротушению за счет широкого угла открывания дверцы более 160° и угла повороты кассеты под пожарный рукав более 90°, в соответствии с требованием ГОСТ.
2. Гарантия от деформации рукавной кассеты за счет конструктива и материалов: выдерживает статическую нагрузку не менее 300Н (30кг), в соответствии с требованием ГОСТ.
3. Безопасное и быстрое извлечение запасного ключа, при модификации с почтовым замком: стекло кармана под запасной ключ не разбивается, а сдвигается в сторону.
4. Быстрый осмотр без вскрытия, благодаря прозрачной вставке из оргстекла в дверце.
5. За счет толщины металла достигается высокая прочность и допустимый вес (до 30кг), в соответствии с требованием ГОСТ.
6. Соблюдение требований естественной вентиляции пожарных шкафов: отверстие в дверце в виде логотипа.
7. Сохранение товарного вида на весь срок службы, благодаря качественной порошковой окраске, защищающей от коррозии.
8. Минимизация транспортных повреждений благодаря упаковочному материалу, обеспечивающему сохранность товара при транспортировке и хранении.
9. Легкий комфортный монтаж, благодаря удачно расположенным технологическим отверстиям для крепления шкафа и вывода труб противопожарного водопровода.
10. Увеличенный размер корзины (300 х 100 мм) с жесткой боковиной, усиливающий каркас корзины, предотвращающий деформацию при использовании рукавов весом до 31 кг.
11. Усиленный кронштейн корзины с антифрикционной шайбой.
12. Скрытые петли с подпружиненной осью (позволяют обеспечить легкий демонтаж дверцы).
13. Постоянный контроль качества от производителя продукции, работа над его улучшением.
Технические характеристики:
Цвет (RAL) | 3002 красный |
Модель | ШПК-О-Пульс-320-12НОК |
Назначение | для двух рукавов и двух огнетушителей |
Способ установки | навесной |
Тип исполнения | открытый |
Материал | металл толщина 0,8 мм |
Габариты (ширина, высота, глубина), мм | 700х1300х300 |
Масса и количество огнетушителей, кг, не более | 2х15 |
Вес не более, кг | 30 |
Хранение и транспортировка | температурный режим -40СО до +45СО |
Эксплуатация | температурный режим +5СО до +45СО |
В комплект поставки шкафа входит:
- пожарный шкаф с рукавными кассетами - 1шт.
- наклейка знак F02 «Пожарный кран», 100х100 мм - 1шт.
- наклейка знак F04 «Огнетушитель»,100х100 мм- 1шт.
- паспорт - 1 экз.
- стекло (толщина 2 мм) - 2шт.
- ключи – 1 комплект для каждой дверцы (2шт)
- упаковочный лист
Срок эксплуатации шкафа - 10 лет.
Гарантийный срок службы шкафа - 12 месяцев со дня реализации.
Особенности монтажа:
Пожарный шкаф ШПК-О-320-12 НОК быстро монтируется, монтаж навесного шкафа не требует никакой дополнительной подготовки места установки. Стальной короб легко закрепляется на стене обычными анкерными болтами либо дюбелями с саморезами к стене, на внутренний противопожарный водопровод здания или промышленного объекта. Высота установки не более 135 см. от пола до ПК для обеспечения удобного доступа к первичным средствам пожаротушения и выполнения требований правил противопожарной безопасности.
Возможно изготовление шкафа на заказ из нержавеющей стали, а также по индивидуальным размерам, цветам и перфорацией.
Цена рассчитывается по запросу.






