Шкаф пожарный ШП-К-Пульс-320-21 НОБ правый с почтовыми замками (навесной, открытый, белый)
Оптовые цены при заказе от 350 000 руб.
Стоимость перемещения заказа на точку с центрального склада - 0р. Срок перемещения 3 р.д.
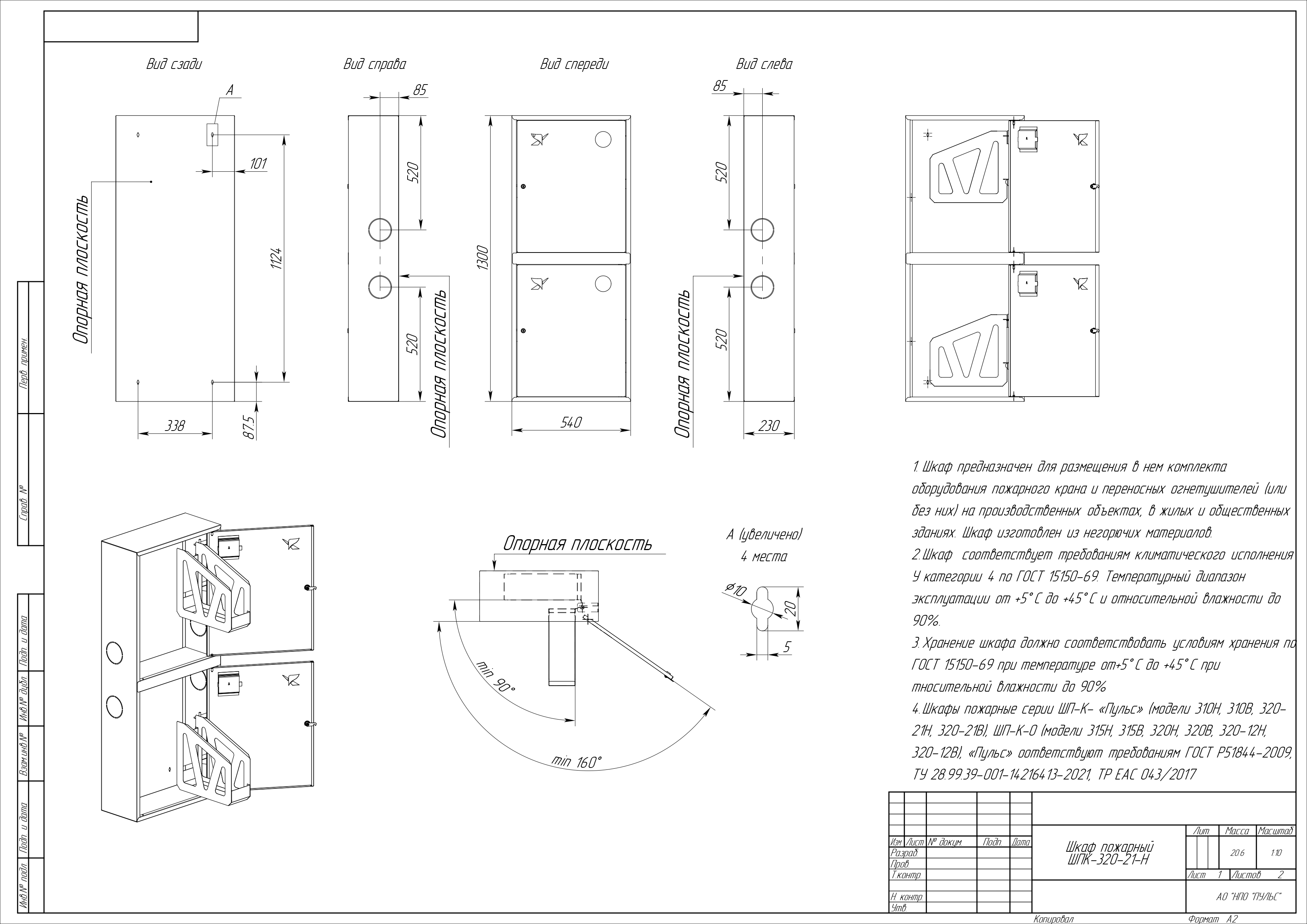
Шкаф пожарный ШП-К-Пульс-320-21 НОБ правый с почтовыми замками (навесной, открытый, белый) для двух рукавов крана противопожарного водопровода.
Секции шкафа имеют равные размеры и расположены друг над другом. Каждая секция укомплектована одной поворотной корзиной (рукавной кассетой), для хранения, свернутого в скатку пожарного напорного рукава диаметром от 50 до 66 мм.
Снабжен дверцами со смотровым окном с почтовыми замками и карманами для хранения ключей. Окрашен прочным полимерным покрытием белого цвета.
Произведен в соответствии с требованиями ГОСТ Р 51844-2009 (угол открывания дверей, нагрузка на кассету, нагрузка на корпус, быстрота вскрытия, опломбирование, вентиляция и пр.).
Сертифицирован в соответствии с техническим регламентом Евразийского экономического союза «О требованиях к средствам обеспечения пожарной безопасности и пожаротушения» (ТР ЕАЭС 043/2017), вступившим в силу с 01.01.2020.
Преимущества пожарного шкафа ШП-К-Пульс-320-21:
- Оперативная подготовка рукава к пожаротушению за счет широкого угла открывания дверцы более 160° и угла повороты кассеты под пожарный рукав более 90°, в соответствии с требованием ГОСТ.
- Гарантия от деформации рукавной кассеты за счет конструктива и материалов: выдерживает статическую нагрузку не менее 300Н (30кг), в соответствии с требованием ГОСТ.
- Безопасное и быстрое извлечение запасного ключа, при модификации с почтовым замком: стекло кармана под запасной ключ не разбивается, а сдвигается в сторону.
- Быстрый осмотр без вскрытия, благодаря прозрачной вставке из оргстекла в дверце.
- За счет толщины металла достигается высокая прочность и допустимый вес (до 28кг), в соответствии с требованием ГОСТ.
- Соблюдение требований естественной вентиляции пожарных шкафов: отверстие в дверце в виде логотипа.
- Сохранение товарного вида на весь срок службы, благодаря качественной порошковой окраске, защищающей от коррозии.
- Минимизация транспортных повреждений благодаря упаковочному материалу, обеспечивающему сохранность товара при транспортировке и хранении.
- Легкий комфортный монтаж, благодаря удачно расположенным технологическим отверстиям для крепления шкафа и вывода труб противопожарного водопровода.
- Увеличенный размер корзины (300 х 100 мм) с жесткой боковиной, усиливающий каркас корзины, предотвращающий деформацию при использовании рукавов весом до 31 кг.
- Усиленный кронштейн корзины с антифрикционной шайбой.
- Скрытые петли с подпружиненной осью (позволяют обеспечить легкий демонтаж дверцы).
- Постоянный контроль качества от производителя продукции, работа над его улучшением.
Технические характеристики:
| Цвет (RAL) | 9016 Белый |
| Модель | ШП-К-Пульс-320-21 НОБ |
| Назначение | для двух рукавов |
| Способ установки | навесной |
| Тип исполнения | открытый |
| Материал | металл, толщина 0,8мм |
| Габариты (ширина, высота, глубина), мм | 540х1300х230 |
| Вес не более, кг | 28 |
| Хранение и транспортировка | температурный режим -40СО до +45СО |
| Эксплуатация | температурный режим +5СО до +45СО |
В комплект поставки шкафа «Пульс» входит:
- пожарный шкаф с рукавными кассетами - 1шт.
- наклейка знак F02 «Пожарный кран», 100х100 мм - 2шт.
- паспорт - 1 экз.
- стекло (толщина 2 мм) - 2шт.
- ключи – 1 комплект для каждой дверцы (2шт)
- упаковочный лист
Срок эксплуатации шкафа - 10 лет.
Гарантийный срок службы шкафа - 12 месяцев со дня реализации.
Особенности монтажа:
Пожарный шкаф ШПК-320-21 НОБ быстро монтируется, монтаж навесного шкафа не требует никакой дополнительной подготовки места установки. Стальной короб легко закрепляется на стене обычными анкерными болтами либо дюбелями с саморезами к стене, на внутренний противопожарный водопровод здания или промышленного объекта. Высота установки не более 135 см от пола до ПК для обеспечения удобного доступа к первичным средствам пожаротушения и выполнения требований правил противопожарной безопасности.
Возможно изготовление шкафа на заказ из нержавеющей стали, а также по индивидуальным размерам, цветам и перфорацией.
Цена рассчитывается по запросу.
